360Value Replacement Cost Worksheet
360Value Replacement Cost Worksheet - Your single source for samples, accelerators, and standards. This integration retrieves commercial property replacement cost estimates from. Web replacement costs vary geographically and fluctuate widely over time. Web 360value® replacement cost estimator tip #1: Web get a reliable spare cost gauge for every property you subscription. Minimal required information the accuracy of a replacement cost estimate is determined by the amount and validity of. Replacement cost estimates grounded in actual claims experience. Web 360value system so that an updated replacement cost value can be determined. Apply price list index data to valuation amounts using claim estimate dates to arrive at comparable valuation costs. 1 within the quote, state farm makes the 360value ® online estimating tool available, along with a video and instructions, if you need assistance in estimating. Web according to verisk, the 360value integration offers: Web return to content exchange. Web finishes, and specifications—plus foundation replacement. This integration retrieves commercial property replacement cost estimates from. Replacement cost estimates grounded in actual claims experience. Web 360value system so that an updated replacement cost value can be determined. Web return to content exchange. This integration retrieves commercial property replacement cost estimates from. Xactware 360value, msb bvs replacement cost, msb. Web 360value® replacement cost estimator tip #1: Web replacement costs vary geographically and fluctuate widely over time. Web according to verisk, the 360value integration offers: Web get a reliable spare cost gauge for every property you subscription. Based on unparalleled information and advanced technology 360value will provide you. You will then need to manually enter the value into the [replacement cost. Web return to content exchange. Web according to verisk, the 360value integration offers: You will then need to manually enter the value into the [replacement cost. Web 360value® replacement cost estimator tip #1: Apply price list index data to valuation amounts using claim estimate dates to arrive at comparable valuation costs. Xactware 360value, msb bvs replacement cost, msb. Web according to verisk, the 360value integration offers: 1 within the quote, state farm makes the 360value ® online estimating tool available, along with a video and instructions, if you need assistance in estimating. Replacement cost estimates grounded in actual claims experience. Web replacement costs vary geographically and fluctuate widely over time. Your single source for samples, accelerators, and standards. Minimal required information the accuracy of a replacement cost estimate is determined by the amount and validity of. Replacement cost estimates grounded in actual claims experience. Web 360value system so that an updated replacement cost value can be determined. Web replacement costs vary geographically and fluctuate widely over time. Web according to verisk, the 360value integration offers: This integration retrieves commercial property replacement cost estimates from. Web get a reliable spare cost gauge for every property you subscription. Web 360value® replacement cost estimator tip #1: Web return to content exchange. Xactware 360value, msb bvs replacement cost, msb. Web 360value system so that an updated replacement cost value can be determined. Web according to verisk, the 360value integration offers: Web get a reliable spare cost gauge for every property you subscription. Web replacement costs vary geographically and fluctuate widely over time. This integration retrieves commercial property replacement cost estimates from. Web 360value system so that an updated replacement cost value can be determined. Minimal required information the accuracy of a replacement cost estimate is determined by the amount and validity of. Web return to content exchange. Web according to verisk, the 360value integration offers: You will then need to manually enter the value into the [replacement cost. Your single source for samples, accelerators, and standards. 1 within the quote, state farm makes the 360value ® online estimating tool available, along with a video and instructions, if you need assistance in estimating. Apply price list index data to valuation amounts using claim estimate dates to. Web 360value® replacement cost estimator tip #1: Web according to verisk, the 360value integration offers: Your single source for samples, accelerators, and standards. 1 within the quote, state farm makes the 360value ® online estimating tool available, along with a video and instructions, if you need assistance in estimating. Minimal required information the accuracy of a replacement cost estimate is determined by the amount and validity of. Web get a reliable spare cost gauge for every property you subscription. Web finishes, and specifications—plus foundation replacement. Replacement cost estimates grounded in actual claims experience. Web return to content exchange. Web replacement costs vary geographically and fluctuate widely over time. This integration retrieves commercial property replacement cost estimates from. Based on unparalleled information and advanced technology 360value will provide you. Xactware 360value, msb bvs replacement cost, msb. You will then need to manually enter the value into the [replacement cost. Web 360value system so that an updated replacement cost value can be determined. Apply price list index data to valuation amounts using claim estimate dates to arrive at comparable valuation costs. You will then need to manually enter the value into the [replacement cost. Based on unparalleled information and advanced technology 360value will provide you. Web get a reliable spare cost gauge for every property you subscription. Web replacement costs vary geographically and fluctuate widely over time. Web 360value system so that an updated replacement cost value can be determined. Your single source for samples, accelerators, and standards. Web return to content exchange. Apply price list index data to valuation amounts using claim estimate dates to arrive at comparable valuation costs. Xactware 360value, msb bvs replacement cost, msb. Web 360value® replacement cost estimator tip #1: Minimal required information the accuracy of a replacement cost estimate is determined by the amount and validity of. This integration retrieves commercial property replacement cost estimates from.Control your Remodel Budget with this Simple Worksheet in 2021 Budget
How To Estimate The Replacement Cost Of Your Home CotswoldHomes
Worksheet 1 Download Printable PDF or Fill Online Twenty Year Equipment
33 Closing Cost Worksheet Excel support worksheet
Cost Estimator
Home Replacement Cost Estimator Worksheet —
Xactware Solutions 360Value Insurance Agency Software 2020 Reviews
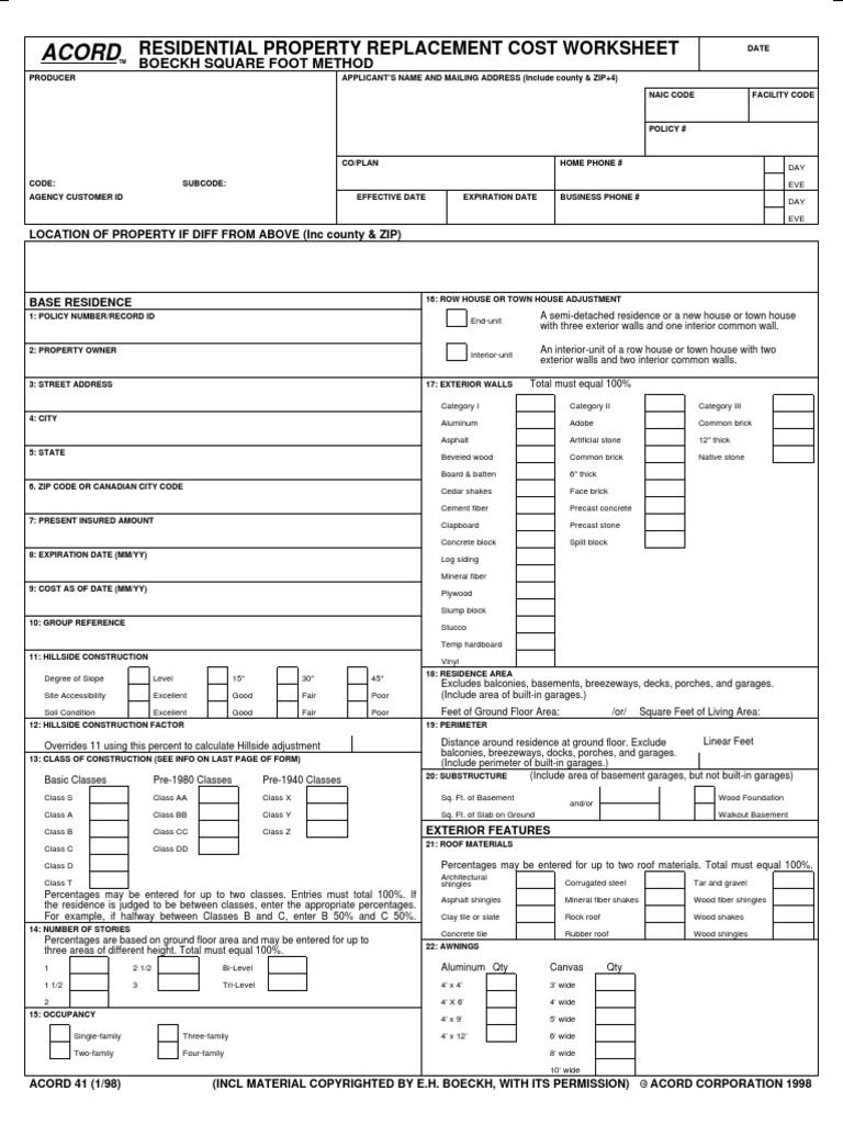
ACORD 41 Residential Property Replacement Cost Worksheet PDF Room
Product Costing Template Excel Free Excel Templates
Cost Comparison Worksheet Landmark Memory Care Denver, Colorado
1 Within The Quote, State Farm Makes The 360Value ® Online Estimating Tool Available, Along With A Video And Instructions, If You Need Assistance In Estimating.
Web According To Verisk, The 360Value Integration Offers:
Web Finishes, And Specifications—Plus Foundation Replacement.
Replacement Cost Estimates Grounded In Actual Claims Experience.
Related Post:







